服务热线:0513-81188234
分享到:

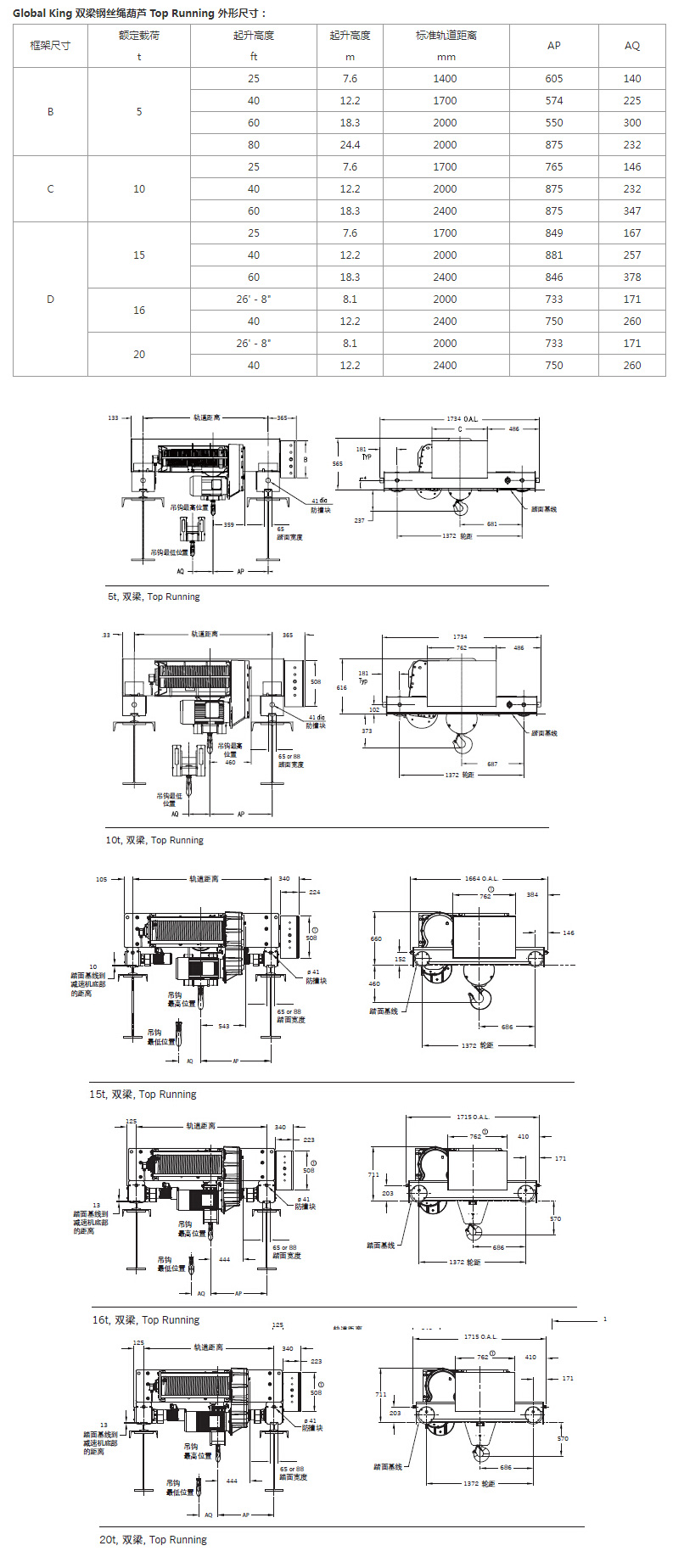
Global King 双梁钢丝绳葫芦 (Top Running)

额定载荷 5000 - 20000 公斤

Yale Global King 钢丝绳葫芦专为采用公制标准的国际市场用户量身定做。
公司具有 140 年的起重机生产经验,同时结合新的生产技术与材料工艺,严格的设计标准并采用高品质的产品部件,才能创造出这款行业的钢丝绳葫芦。
Global King 葫芦是目前市场上具有竞争力的钢丝绳葫芦之一。它有着业内的安全产品特性、灵活的配置和大量产品选项,包括更长的起升高度、特殊的控制选项以及面对危险环境的防爆型号。因着这些特点,可以保证即使在繁重的工作环境下,Global King 葫芦具有使用简便,并且使用寿命长的特点。

双梁钢丝绳葫芦特性:
1、钢丝绳卷筒
采用高质钢材制造而成的钢丝绳卷筒采用深沟槽设计,同时还配有导绳机构,可以有效地帮助钢丝绳的准确排绳,确保操作安全的同时延长钢丝绳及卷筒的使用寿命。钢丝绳顶端配三颗高强度金属锁扣锁紧,并且当处于吊钩低位时,顶端仍留有三卷余量,保证操作的安全性。
2、高强度 DC 盘式制动器
高强度的 DC 盘式制动器制动性能可达到标准扭矩的2倍,从而实现快速、主动的刹车及抱紧功能。
3、葫芦起升电机
双速葫芦起升电机,高低速比为4:1,可以满足您低速运行准确定位及高速运行快速起降的全面工作要求。电机的设计和制造为起重行业所量身定制。
4、齿轮传动机构
油浸式齿轮传动机构采用三级降速设计,精加工的齿轮组在防渗漏的铸铝齿轮箱中运行。
5、低净空
低净空设计保证大的吊钩行走距离。
6、限位器 (未在图中显示)
钢丝绳葫芦标配上下端旋片式电路限位器,另外可选配触碰式顶端限位器。同时机器标配有过载保护装置,保障操作安全性。
7、可旋转吊钩
小车标配有可旋转吊钩,吊钩可在水平360度、垂直180度的范围内自由旋转,方便负重的装卸。

小车特性:
1、电子化葫芦动作监测卡
选配PulseTM 监测卡,可记录运行的重要信息,有助于故障排除,减少维护成本。另有选配 Pulse 监测电脑接口套装,可方便地在电脑中读取数据。
2、小车
小车机构可以方便地调节以适应不同的轨道宽度。标配小车防坠落特性。标配小车防撞块。
3、葫芦和小车控制箱
钢丝绳葫芦主机及小车控制部件封闭控制箱具有 NEMA 4/12 的防护等级。控制部分可以实现的主要功能包括:钢丝绳葫芦动作监测功能(可选),电机过热保护功能以及钢丝绳葫芦过载保护功能等。电气部件方便更换。葫芦起升电机及小车可以双速调节,以便平滑加速及负载准确定位。
4、小车车轮
高强度的钢制小车车轮能够平滑地运行在符合 ASCE 标准或其他方形钢梁上。小车两侧各有一驱动轮带动负载平稳同步运行。5 吨小车是由单一电机通过齿轮减速驱动两侧车轮同步运行。其他吨位的小车都含有双驱动。


Copyright © 2021 南通仕迈起重设备有限公司 版权所有    苏ICP备2021004237号-1